Western Province
Colombo, Kaluthara and Gampaha Projects
| Architectural Drawing of the Project | Project Details | Current Picture |
|
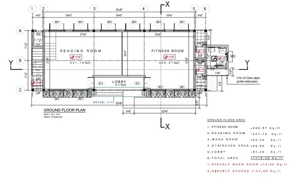
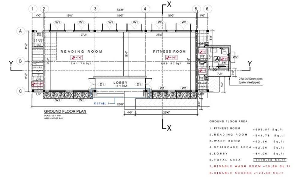
Name of the project: CONSTRUCTION OF SUPER STRUCTURE MANNING MARKET
Province: Western
Town: Peliyagoda
Investment: 5259 Mn
Public Benefit:
Date of Commencement: 20/12/2017
Date of Completion: 20/12/2019
|
||
|
Name of the project: PILIYANDALA BUS STAND DEVELOPMENT
Province: Western
Town: Piliyandala
Investment: 186 Mn
Public Benefit:
Date of Commencement: 20/12/2017
Date of Completion: 20/12/2019
|
||
|
Name of the project:MORATUWA WEERAPURAN APPU PARK
Province: Western
Town: Moratuwa
Investment: 112 Mn
Public Benefit:
Date of Commencement: 14.01.2019
Date of Completion: 14.10.2019 (4 months)
|
||
|
Name of the project:HORANA POLA STAGE 2
Province: Western
Town: Horana
Investment: 50 Mn
Public Benefit:
Date of Commencement: 07.08.2018
Date of Completion:07.12.2019 ( 7 months)
|
||
|
Name of the project: DESIGN AND CONSTRUCTION OF PROPOSED BUS STAND AT HORANA STAGE 3 & STAGE 4
Province: Western
Town: Horana
Investment:
Stage 3 – 40 Mn
Stage 4 – 62 Mn Public Benefit:
Date of Commencement:
Stage 3 – 20.09.2017 Stage 4 – 31/03/2018 (06 month) Date of Completion:
Stage 3 – App 2018 Stage 4 – Jan.2019 (9 months) |
stage 3stage 4 |
|
|
Name of the project: DEVELOPMENT POLA AT DOMPE
Province: Western
Town: Dompe
Investment:
68 Mn
Public Benefit:
Date of Commencement: 23.04.2018
Date of Completion: 31/12/2018
|
||
|
Name of the project: CONSTRUCTION OF PROPOSED COMMERCIAL BUILDING AT MINUWANGODA
Province: Western
Town: Minuwangoda
Investment:
88.9 Mn
Public Benefit:
Date of Commencement: 26.10.2018
Date of Completion: 16/07/2019
|
||
|
Name of the project:PROPOSED HARITHA UDYANAYA MULTIFUNCTIONAL BUILDING AT INGIRIYA
Province: Western
Town: Ingiriya
Investment:
17.86Mn (with VAT)
Public Benefit:
Date of Commencement: 08/01/2019
Date of Completion: 08/05/2019 (4 months)
|
||
|
Name of the project:PROPOSED HARITHA UDYANAYA MULTIFUNCTIONAL BUILDING AT KOLONNAWA
Province: Western
Town: Kolonnawa
Investment:
19.27Mn (with VAT)
Public Benefit:
Date of Commencement: 17/01/2019
Date of Completion: 17/05/2019
|
||
|
Name of the project:PROPOSED HARITHA UDYANAYA MULTIFUNCTIONAL BUILDING AT KIRIDIWELA
Province: Western
Town: Kiridiwela
Investment:
14.5Mn (with VAT)
Public Benefit:
Date of Commencement: 27/02/2019
Date of Completion: 27/06/2018
|























